Большая вилла с панорамным обзором в Кумбре дель Соль
Современная архитектура, красивый интерьер, живописные виды и стиль, подчеркивающий индивидуальность – все это может стать вашим.
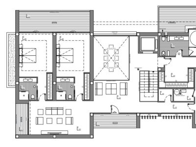
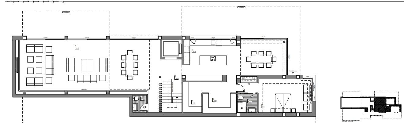
Светлое жилье подарит вам только удобство и удовольствие! Четкие линии фасада прекрасно гармонируют с окружающей средой. А изысканное пространство на главном этаже преподносит уютное место для отдыха, кухонную площадь и обеденную зону, где вы, принимая пищу, сможете не отрываться от природных панорам. Здесь, к вашим услугам двойное освещение, верхняя часть которого с внешней стороны дополнена декоративными панелями. Абсолютно все спальни просторные и светлые и имеют свои ванные комнаты. А главная спальня располагает гардеробной и большой террасой, с которой вы спокойно сможете наблюдать за морем.
Нижний ярус – это дополнительное пространство, которое можно выделить для гостей с дополнительной спальней, ванной, столовой и террасой. Также здесь есть крытая парковка на 3 машины, а лифт, соединяющий 3 этажа, обеспечивает дополнительный комфорт и функциональность. В дополнение ко всему вилла предлагает цоколь, отлично подходящий для кабинета, игровой комнаты или чего-то еще.
Идеальное место для того чтобы получить прекрасное качество жизни!
Окончание строительства: март 2025 г.













