Villa moderna en Finestrat
Nuevo complejo residencial en la Costa Blanca en la tranquila zona residencial del Balcón de Finestrat con buenas comunicaciones, junto al campo de golf de Puig Campana y a menos de 10 minutos en coche de la Bahía de Finestrat y las playas de arena de Benidorm.< br />
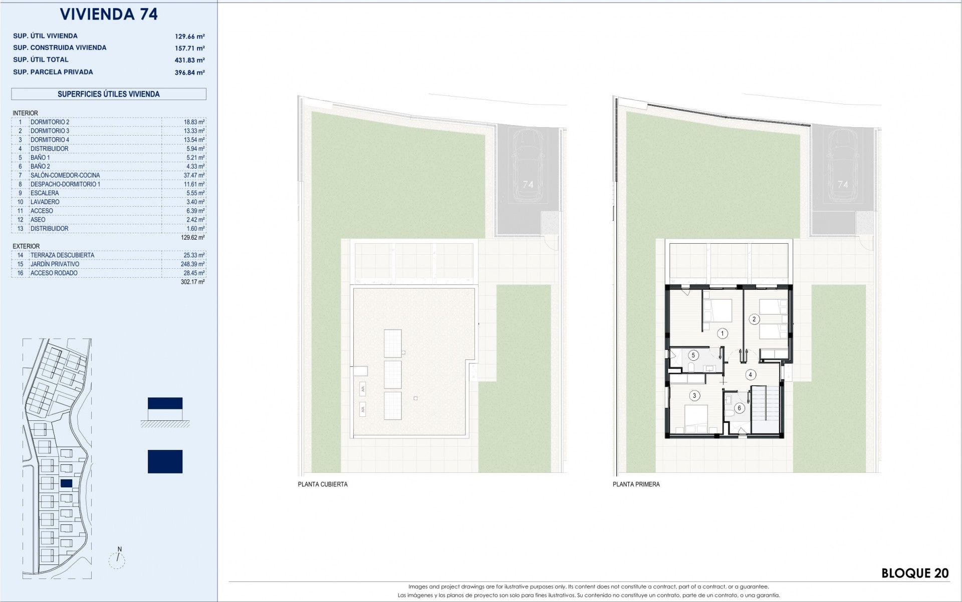
Villas pareadas, adosadas y villas independientes en la segunda fase de un complejo moderno con impresionantes vistas a las zonas comunes con piscina y jardines privados, con vistas a la naturaleza, al horizonte de Benidorm y algunas con vistas al mar Mediterráneo.
La residencia dispone de piscina comunitaria para adultos con piscina infantil y solárium, parking exterior privado con preinstalación para carga de vehículos eléctricos, aparcamiento para bicicletas, trastero, jardín y zona de juegos infantiles con revestimiento seguro.
El hermoso entorno natural y la excelente ubicación entre las ciudades de Finestrat y Benidorm permiten disfrutar de un clima favorable a la vida.























